255 Brecon Buff DriveWillis, TX 77318




Mortgage Calculator
Monthly Payment (Est.)
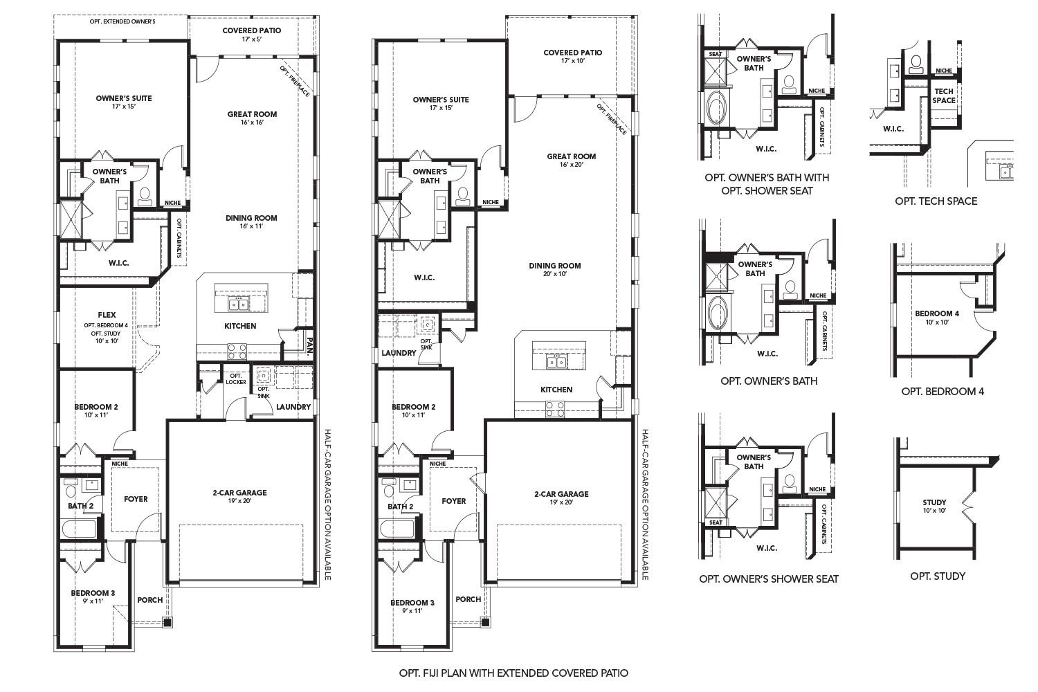
$1,597Come home to The Woodlands Hills, a serene master-planned community in Willis, TX, where nature meets modern living! With over 20 parks, scenic trails, a resort-style pool, and a strong sense of community, it's the perfect place for families to enjoy outdoor activities and make lasting memories, all while being close to Lake Conroe and top-rated schools. This stunning NEW construction Fiji plan features 3 bedrooms, 2 full baths, a study & a 2-car garage. The kitchen has gorgeous custom grey cabinetry & sleek omega stone countertops. The main living areas feature durable laminate flooring, with easy-to-maintain tile in the wet areas. You will fall in love with the primary bedroom's walk-in closet, spacious shower with built-in seating & dual vanities! Enjoy your backyard oasis, featuring full sod, a sprinkler system & a covered patio. This home is under construction and will be ready July 2026!
| 3 days ago | Listing updated with changes from the MLS® | |
| 3 days ago | Listing first seen on site |
IDX information is provided exclusively for consumers’ personal, non-commercial use. It may not be used for any purpose other than to identify prospective properties consumers may be interested in purchasing. This data is deemed reliable but is not guaranteed accurate by the MLS.
Data provided by HAR.com © 2026. All information provided should be independently verified.

Did you know? You can invite friends and family to your search. They can join your search, rate and discuss listings with you.